5 pièces / 5 pièces cabine - LOU BAITANDYS
Centre villagePrésentation
Spacieux appartement rénové classé 3 étoiles, d’une superficie de 100 m², situé au 2ème étage d’une résidence calme. Profitez d’un grand balcon exposé Sud-Est avec une vue imprenable sur les pistes de ski. Entièrement équipé pour un séjour tout confort à la montagne, cet appartement lumineux est idéal pour les familles ou les groupes d’amis en quête de nature, de ski et de détente. À deux pas des pistes, dans un cadre paisible et ensoleillé
Capacité : 10 personnes (3 lits doubles et 4 lits simples).
DESCRIPTION :
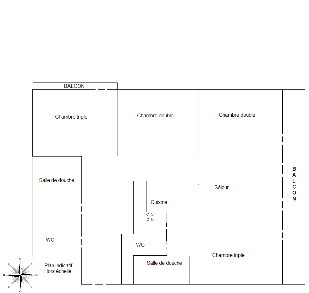
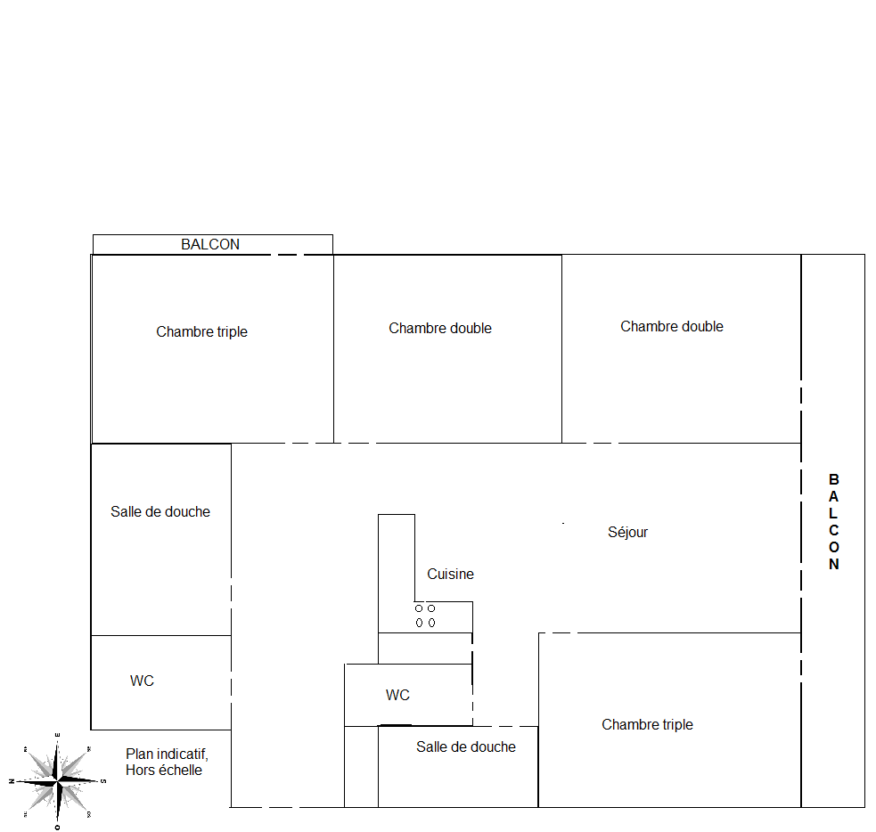
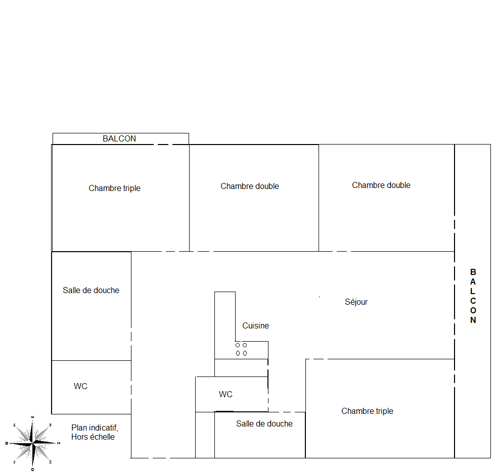
- 1 hall d'entrée avec placard de rangement.
- 1 salon-séjour avec grande cuisine équipée ouverte sur le séjour. Accès sur balcon par baies-vitrées, vue sur les pistes de ski.
- 1 chambre avec televison et lecteur DVD, 3 lits de 90 cm accès au balcon
- 1 chambre avec 3 lits de 90 cm accès au balcon
- 1 chambre avec 2 lits de 90 cm
- 1 chambre avec 2 lits de 90 cm accès au balcon
- 1 salle douche avec sèche-serviette
- 1 grande salle de douche avec table a langer et matelas, seche serviette.
- 2 WC indépendants
EQUIPEMENTS :
Chauffage au sol + convecteur, sèche-chaussures et gants dans l'entrée, Télévision, lecteur DVD, lave-vaisselle, lave-linge, sèche linge, fer + table à repasser, séche cheveux, mixer, four, micro-onde, Wifi, lit bébé (draps en supplément, sur demande), chaise haute, Nespresso, appareils a raclette et fondue
ANNEXES :
Casier à ski, Parking couvert pour 2 voitures (hauteur max : 2.45 m)
À votre arrivée : Produits d'accueil ménage et SDB. Alèzes jetables / Non fumeurs - Animaux Interdits.
LOCATION HIVER, SERVICES INCLUS :
Ménage fin de séjour, Linge de maison (draps, taies d'oreiller et housse de couette), Serviettes et tapis de bain. Location de peignoir et préparation des lits en option
LOCATION ETE, SERVICES INCLUS:
Ménage de fin de séjour, autres services en option sur demande.
Capacité : 10 personnes (3 lits doubles et 4 lits simples).
DESCRIPTION :
- 1 hall d'entrée avec placard de rangement.
- 1 salon-séjour avec grande cuisine équipée ouverte sur le séjour. Accès sur balcon par baies-vitrées, vue sur les pistes de ski.
- 1 chambre avec televison et lecteur DVD, 3 lits de 90 cm accès au balcon
- 1 chambre avec 3 lits de 90 cm accès au balcon
- 1 chambre avec 2 lits de 90 cm
- 1 chambre avec 2 lits de 90 cm accès au balcon
- 1 salle douche avec sèche-serviette
- 1 grande salle de douche avec table a langer et matelas, seche serviette.
- 2 WC indépendants
EQUIPEMENTS :
Chauffage au sol + convecteur, sèche-chaussures et gants dans l'entrée, Télévision, lecteur DVD, lave-vaisselle, lave-linge, sèche linge, fer + table à repasser, séche cheveux, mixer, four, micro-onde, Wifi, lit bébé (draps en supplément, sur demande), chaise haute, Nespresso, appareils a raclette et fondue
ANNEXES :
Casier à ski, Parking couvert pour 2 voitures (hauteur max : 2.45 m)
À votre arrivée : Produits d'accueil ménage et SDB. Alèzes jetables / Non fumeurs - Animaux Interdits.
LOCATION HIVER, SERVICES INCLUS :
Ménage fin de séjour, Linge de maison (draps, taies d'oreiller et housse de couette), Serviettes et tapis de bain. Location de peignoir et préparation des lits en option
LOCATION ETE, SERVICES INCLUS:
Ménage de fin de séjour, autres services en option sur demande.
Informations générales
- Quartier :
- Centre village
- Type d'hébergement :
- Appartement
- Nombre de Pièces :
- 5 pièces
- 5 pièces + cabine
- Classement :
- Nombre de chambre(s) :
- 4 chambres
- Nombre de salles de bains :
- 2 salles de bain
- Nom de la Résidence / Chalet :
- LOU BAITANDYS
- Balcon/Terrasse :
- Balcon / terrasse
- Animaux :
- Animaux interdits
- Situation - Proximité des pistes :
- A moins de 200m des pistes
- Distance des Remontées Mécaniques :
- 70 m de la télécabine des Chavannes
- 300 m de la télécabine du Mont Chéry
- Distance points d'intérêt :
- 150 m de l'office de tourisme
- 300 m de la gare routière
- 150 m de l'école de Ski Français
Équipements, Services
- Equipement Séjour :
- Télévision
- Connexion Wi-Fi
- Equipement Cuisine :
- Micro-ondes
- Combiné four / micro-ondes
- Lave-vaisselle
- Appareil à raclette
- Appareil à fondue
- Lave-linge/Sèche-linge :
- Lave-linge
- Sèche-linge
- VTT équipement :
- Il est interdit d'entrer les vélos dans le logement
- Parking :
- Parking ou garage (voir information dans le descriptif)
- Parking (voir détail dans le descriptif)
Bon à savoir
- Exposition :
- Sud
- Est
- Local à ski :
- Casier à ski
- Info Plus :
- Borne de recharge pour voiture électrique à proximité
- Services :
- Logement équipé avec couettes et oreillers
- Langue :
- Français
- Anglais
- Caution :
- Caution à verser au propriétaire en € : 500 €
Situation sur le Plan
Carte

Calcul d'itinéraire
Destination
220 route du front de neige
74260
LES GETS
Coordonnées GPS
Latitude : 46.1575705
Longitude : 6.6688433
- Situation - Proximité des pistes :
- A moins de 200m des pistes
Avis
Note :
(6 avis)
4,5
/ 5
Février 2024
FRANCOIS
Note :
5
/ 5
Logement très bien équipé et adapté pour 3 couples avec enfants
Aménagement intérieur, décoration
Equipements
Propreté
Qualité de l’accueil à votre arrivée et à votre départ
Conformité du descriptif par rapport à la prestation
Confort de la literie
Rapport qualité/prix
Avis écrit le 13/02/2024
14/02/2024
09h57
ZZ Emmanuel a répondu
Merci pour votre commentaire ! Celui-ci a bien été transmis à la personne responsable du logement.
En espérant vous revoir prochainement aux Gets ! ;)
Janvier 2024
François
Note :
4
/ 5
Très fonctionnel
Aménagement intérieur, décoration
Equipements
Propreté
Qualité de l’accueil à votre arrivée et à votre départ
Conformité du descriptif par rapport à la prestation
Confort de la literie
Rapport qualité/prix
Avis écrit le 30/01/2024
30/01/2024
10h45
ZZ Emmanuel a répondu
Merci pour votre retour !
Votre commentaire a bien été transmis à la personne responsable du bien.
Nous espérons vous revoir très prochainement aux Gets ! :)
Avis par type de profil
































